


140 000 ₽/м²
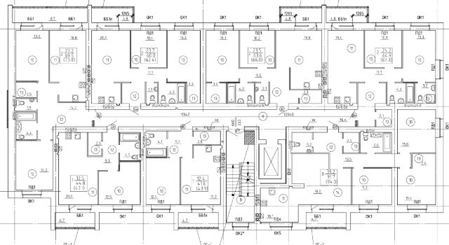
Квартиры в строящемся доме! поз.5 ЖК NEXT на Площади Партизан. Вручение ключей IV квартал 2026 года. ЖК занял 1 место в номинации "Лучший жилой комплекс в Брянской области"* и 3 место в номинации "Лучший жилой комплекс в РФ"* в 2025г. Новый жилой комплекс бизнес-класса в историческом центре Брянска. Расположен за Краеведческим музеем рядом с естественным природным массивом. Идеален для тех, кто желает наслаждаться природой, спокойствием и в то же время пользоваться преимуществами жизни в центре. Преимущества жизни в ЖК NEXT на Площади Партизан: - Кирпичные дома - Близость естественного природного массива - Развитая инфраструктура - Удобная транспортная доступность - Авторские планировки - Индивидуальное отопление - Встроенная система "тёплый пол" - Отапливаемая лоджия с панорамным остеклением - Высота потолков от 2,7 до 3 м. - В квартирах предусмотрены кухни-гостиные, ниши для шкафов, гардеробные, мастер-спальни. Отделка White Box: - Выполнена полусухая стяжка с фиброволокном, на которую уже можно укладывать финишное покрытие (паркет, ламинат и т.д.) - Полностью установлена система отопления квартиры - Установлена система "тёплый пол" - Подготовлены потолки - Все стены выровнены, загрунтованы и оштукатурены - Выровнены откосы - Выполнено панорамное остекление лоджии - Электрическая проводка разведена по комнатам - Установлена надежная металлическая входная дверь фирмы Boyard Территория: - Просторный паркинг - Места для отдыха с беседками - Ландшафтное озеленение территории - Многоуровневое освещение - Двор общей площадью 1,5 ГА. Способы покупки: - рассрочка - ипотека - 100% оплата Подробности и условия уточняйте в офисе продаж: ПН - ПТ с 9:00 до 18:00 СБ с 9:00 до 16:00 или в сообщениях в любое время. Полное сопровождение сделки. Квартира предлагается от застройщика NEXT Development, без комиссий! * ЖК занял 1 место в номинации "Лучший жилой комплекс-новостройка в Брянской области" и 3 место в номинации "Лучший жилой комплекс-новостройка в РФ, многоэтажные дома" в 2025г. Продам 1-комнатную квартиру с индивидуальным отоплением в Брянске.

























































































