3 300 000 ₽
60 000 ₽/м²
Арт. 129910848 !!! Квартира после пожара.
Для ценителей сталинок продается 2-комнатная квартира в Советском районе г. Брянска по адресу: ул. Фокина, д. 27/43 — это исторический центр города с особой атмосферой и развитой инфраструктурой.
Параметры квартиры:
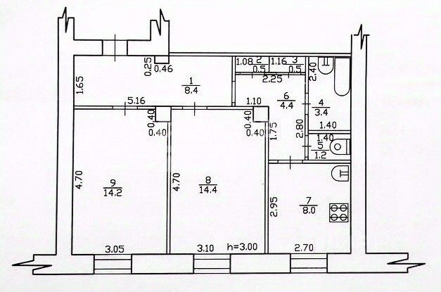
Общая площадь — 55 м²
Жилая площадь — 33 м²
Комфортный 2 этаж
Изолированные комнаты
Высокие потолки — 3 м
Раздельный санузел
Пластиковые стеклопакеты
Не угловая
Инфраструктура:
В шаговой доступности: Парк-музей имени А.К. Толстого, зелёная зона для прогулок и отдыха
Площадь Карла Маркса — центральная площадь с фонтаном и атмосферой старого города,
ЦУМ, магазины, рестораны, аптеки, школа, детский сад и остановки общественного транспорта.
Жить в центре — значит экономить время каждый день и быть в центре событий. Отличный вариант как для проживания, так и для инвестиции.
Звоните, и записывайтесь на показ! Ответим на все интересующие вас вопросы.













































































