Мы используем куки-файлы. Соглашение об использовании
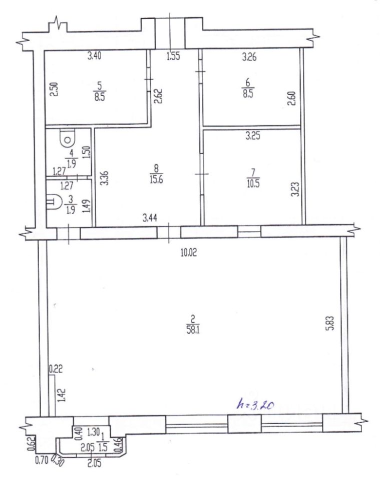
Помещение свободного назначения, 107,5 м²

Сдается помещение свободного назначения, 107,5 м²

Площадь107,5 м²
Этаж1 из 5
ПомещениеСвободно
Аренда 108 м² на первой линии Высокий трафик | Бежицкий район | Ростовская, 12 Нужно помещение, которое реально видно и куда удобно заходить? Это первая линия в начале Бежицкого района, рядом с кольцом — точка с постоянным движением. Локация, которая работает без рекламы — Студенческий городок в шаговой доступности — ежедневный пешеходный трафик — Напротив — женская консультация (постоянный поток посетителей) — Слева планируется строительство церкви — дополнительный поток — Плотная жилая застройка вокруг Это место, где люди уже есть. Их не нужно привлекать — они проходят мимо каждый день. Параметры помещения • 108 м² — оптимальная площадь для бизнеса • Полностью 1 этаж • Потолки 3,2 метра • Хорошая просматриваемость • Возможность размещения крупной вывески • В перспективе — большая парковка рядом Не цоколь. Не двор. Не глубоко внутри. Полноценная коммерция на первой линии. Под что идеально подойдёт Аптека, медцентр, салон, магазин, кафе, ПВЗ, услуги, офис продаж. С учётом окружения особенно сильный потенциал у медицины, розницы и общепита. Если ищете точку с трафиком — это рабочий вариант. Арендная плата 55 тысяч рублей + коммунальные платежи Арендные каникулы предоставляются Залог за 2 месяца Звоните — обсудим условия аренды и договоримся о просмотре.
lock

Войдите или зарегистрируйтесь
для просмотра информации

Просматривайте условия сделки и всю информацию об объекте
Сохраняйте фильтры в поиске и не вводите заново
Доступ к избранному с любого устройства
Неограниченное добавление в избранное
Позвоните автору
Вам ответят на все вопросы
Остались вопросы по объявлению?
Позвоните владельцу объявления и уточните необходимую информацию.
  • Инфраструктура
  • Похожие рядом
  • Площадь участка0 га
  • Общая площадь107,5 м²
  • Статус участкаВ собственности
Приточная вентиляция
Местное кондиционирование
Центральное отопление
Помощь надёжных риелторов
Риелтор партнёр Циан поможет купить или продать любую недвижимость
55 000 ₽/мес.

Прямая аренда (от года), минимальный срок аренды 10 месяцев, доступны арендные каникулы, обеспечительный платёж 55000 ₽, предоплата за 2 месяца

723 $/мес.
614 /мес.
Цена за метр
6 140 ₽ в год
Налог
НДС включен: 9 918 ₽
Комиссия
100%
Коммунальные платежи
не включены
Эксплуатационные расходы
не включены
Агентство недвижимости
Документы проверены