Мы используем куки-файлы. Соглашение об использовании
С мебельюТолько на Циан

Продается 1-комн. квартира, 30,7 м²

Общая площадь30,7 м²
Жилая площадь18,6 м²
Площадь кухни6 м²
Этаж4 из 5
Продается стильная и уютная квартира вторичка с одной комнатой на 4 этаже 5-этажного дома. Площадь квартиры 30.70 кв.м. В квартире выполнен свежий современный ремонт, что делает ее весьма привлекательной для покупателей. Мебель остается в квартире, что сэкономит ваше время и средства на обустройство помещения. Эта квартира подойдет как для молодых семей с детьми, так и для молодых людей, которые ценят свою независимость. Также это идеальный вариант для родителей или пожилых родственников, благодаря удобному расположению дома и близости к необходимой инфраструктуре. Рядом с домом находятся школа коррекции и развития VIII вида 37, детский сад 73, средняя общеобразовательная школа 36. Также в пешей доступности находится парк культуры и отдыха железнодорожников, магазин Пятёрочка, супермаркет и другие объекты инфраструктуры. Эта квартира идеально сочетает в себе цену и качество, оставляя покупателя полностью удовлетворенным своим выбором. Не упустите возможность приобрести такой прекрасный жилой вариант по привлекательной цене! Звоните нам прямо сейчас, чтобы узнать больше информации о квартире и договориться о просмотре. Наш менеджер с удовольствием ответит на все ваши вопросы и поможет с выбором и покупкой недвижимости. Поторопитесь, потому что такой привлекательный вариант может быть продан очень быстро! Номер объекта: #1/537206/23722
Позвоните автору
Вам ответят на все вопросы

О квартире

Тип жилья

Вторичка

Общая площадь

30,7 м²

Жилая площадь

18,6 м²

Площадь кухни

6 м²

Санузел

1 совмещенный

Вид из окон

На улицу и двор

Ремонт

Евроремонт

Продаётся с мебелью

Да

О доме

Год постройки

1965

Строительная серия

1-447

Тип дома

Кирпичный

Тип перекрытий

Железобетонные

Подъезды

4

Отопление

Центральное

Аварийность

Нет

Газоснабжение

Центральное

Спросите умного помощника
Получите экспертное мнение о жилье
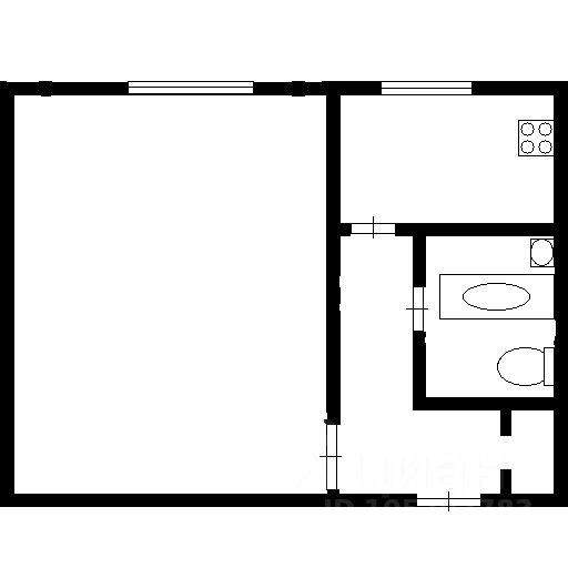
Планировка этой квартирыПо данным Циан
Планировка этой квартиры по данным Циан

Расположение

Ипотечный калькулятор
  • Базовая
  • Семейная
  • ІТ-ипотека
  • 20.1%
  • 30%
  • 40%
  • 50%
лет
  • 10 лет
  • 20 лет
  • 30 лет
Загружаем предложения от застройщика и банков
Зимой будет тепло
Дома такой же серии обычно хорошо сохраняют тепло
7
2 300 000 ₽
Цена за метр
74 919 ₽/м²
Условия сделки
свободная продажа
Ипотека
возможна
Агентство недвижимости