Мы используем куки-файлы. Соглашение об использовании
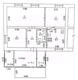
Общая площадь52,9 м²
Участок7,8 сот.
Арт. 129425683 Продаётся половина дома в Бежицком районе, ул. Катунина. Отличный вариант для тех, кто ищет дом в черте города с участком и возможностью обустроить всё под себя. Характеристики: Площадь дома — 52,9 м² Площадь участка — 7,8 сотки О доме: Материал стен — кирпич Перекрытия — бетонные Крыша, в хорошем состоянии, не течёт Отопление — газовый котёл Окна — пластиковые Установлены счётчики на газ и электроэнергию Санузел в доме Дом требует капитального ремонта, что позволяет реализовать собственный проект под свой вкус. Преимущества: Подходит как для постоянного проживания, так и для дачи. тихое, спокойное место, хорошие соседи. Чистый воздух и зелёная зона. Инфраструктура: Остановка общественного транспорта — в шаговой доступности. Вблизи: продуктовые и строительные магазины, школа 43, детский сад "Капелька", медицинский колледж, озеро Орлик — отличное место для прогулок и отдыха. Звоните прямо сейчас и записывайтесь на просмотр! С удовольствием ответим на все вопросы и покажем дом в удобное для вас время.
Позвоните автору
Вам ответят на все вопросы

О доме

Площадь

52,9 м²

Часть в продажу

50%

Количество спален

3

Об участке

Площадь

7,8 сот.

Статус участка

Индивидуальное жилищное строительство

Коммуникации и удобства

Санузел

1 в доме

Канализация

Есть

Водоснабжение

Центральное

Газ

Есть

Спросите умного помощника
Получите экспертное мнение о жилье

Расположение

Подпишитесь на объявления в этой локации
Мы сообщим, как только поблизости появится что‑нибудь новенькое
Ипотечный калькулятор
  • Базовая
  • Семейная
  • ИТ-ипотека
  • 20%
  • 30%
  • 40%
  • 50%
лет
  • 10 лет
  • 20 лет
  • 30 лет
Загружаем предложения от застройщика и банков
Суперагент
Хотите продать недвижимость?Разместите объявление на ЦианРазместить
2 600 000 ₽
Цена за метр
49 149 ₽/м²
Агентство недвижимости
На Циан
14 лет
Объектов в работе
56
Риелтор
Суперагент