2 000 000 ₽
66 890 ₽/м²
Код объекта: 1179849.
Продаётся уютная квартира в Брянске по адресу: улица Абашева, 5
Уважаемые покупатели! Предлагаю вашему вниманию отличную квартиру в тихом районе Брянска. Это идеальный вариант для комфортного проживания. Квартира расположена на третьем этаже пятиэтажного кирпичного дома. Год постройки — 1976. Материал перекрытий — железобетонные плиты.
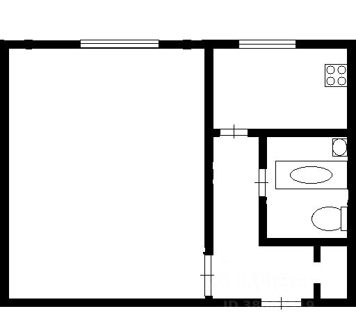
Квартира имеет общую площадь 29,9 квадратных метров, из которых 18 кв. м приходится на жилую площадь и 6 кв. м — на кухню. Высота потолков составляет 2,6 метра. Все комнаты изолированы, окна выходят на улицу. В квартире сделан старый ремонт, но она полностью готова к заселению новых жильцов.
Дом оборудован центральным отоплением, что обеспечивает тепло и комфорт даже в самые холодные дни.
Горячая вода - не колонка!!!
Наземная парковка около дома позволит вам не беспокоиться о месте для своего автомобиля.
Эта квартира — отличный выбор для тех, кто ценит уют, комфорт и удобное расположение. Не упустите свой шанс приобрести это жильё по выгодной цене! Мы гарантируем безопасную сделку и юридическую поддержку нашим Клиентам. Поможем одобрить ипотеку с сниженной ставкой.
Звоните прямо сейчас, чтобы узнать больше об этой замечательной квартире и договориться о просмотре! Купить 1-комнатную квартиру до 2 млн рублей в Брянске.



















































































