Мы используем куки-файлы. Соглашение об использовании
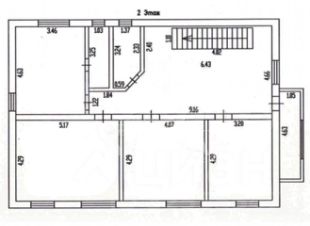
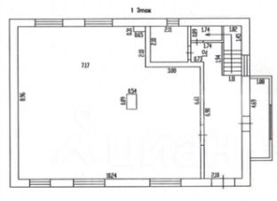
Помещение свободного назначения, 335 м²

Сдается помещение свободного назначения, 335 м²

Площадь335 м²
Этаж1 из 3
ОТЛИЧНОЕ ПРЕДЛОЖЕНИЕ НАПРЯМУЮ ОТ СОБСТВЕННИКА! ЗДАНИЕ НА ПЕРВОЙ ЛИНИИ! БОЛЬШОЙ ТРАФИК ЛЮДЕЙ И МАШИН! Сдается помещение свободного назначения в аренду. МОЖНО ВЗЯТЬ ЧАСТЯМИ. На всех этажах есть отопление, электричество, вода, теплый пол, а потолки - 3,20. Здание расположено на участке 938 м2 , первая линия, имеется видеонаблюдение, телефонная линия, электроворота. Отлично подойдет под легкое производство, склад, магазин, офис. Звоните, всегда на связи! :)
lock

Войдите или зарегистрируйтесь
для просмотра информации

Просматривайте условия сделки и всю информацию об объекте
Сохраняйте фильтры в поиске и не вводите заново
Доступ к избранному с любого устройства
Неограниченное добавление в избранное
Позвоните автору
Вам ответят на все вопросы
Остались вопросы по объявлению?
Позвоните владельцу объявления и уточните необходимую информацию.
  • Инфраструктура
  • Похожие рядом
  • Тип зданияСвободное
  • Площадь участка0,09 га
  • Общая площадь565 м²
  • Статус участкаВ собственности
Естественная вентиляция
Автономное отопление
Помощь надёжных риелторов
Риелтор партнёр Циан поможет купить или продать любую недвижимость
СобственникID 116523232
    55 000 ₽/мес.

    Прямая аренда (от года), минимальный срок аренды 6 месяцев, доступны арендные каникулы, предоплата за 1 месяц

    737 $/мес.
    626 /мес.
    Цена за метр
    1 971 ₽ в год
    Налог
    УСН
    Комиссия
    нет
    Коммунальные платежи
    не включены
    Эксплуатационные расходы
    не включены
    СобственникID 116523232