Мы используем куки-файлы. Соглашение об использовании
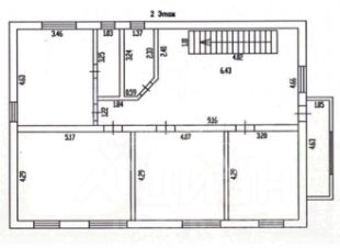
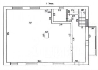
Помещение свободного назначения, 335 м²

Сдается помещение свободного назначения, 335 м²

Площадь335 м²
Этаж1 из 2
ЗДАНИЕ НА ПЕРВОЙ ЛИНИИ! БОЛЬШОЙ ТРАФИК ЛЮДЕЙ И МАШИН! Сдается помещение свободного назначения в аренду. МОЖНО ВЗЯТЬ ЧАСТЯМИ. На всех этажах есть отопление, электричество, вода, теплый пол, а потолки - 3,20. Здание расположено на участке 938 м2 , первая линия, имеется видеонаблюдение, телефонная линия, электроворота. Отлично подойдет под легкое производство, склад, магазин, офис. Звоните, всегда на связи! :) Риелторам просьба не беспокоить.
lock

Войдите или зарегистрируйтесь
для просмотра информации

Просматривайте условия сделки и всю информацию об объекте
Сохраняйте фильтры в поиске и не вводите заново
Доступ к избранному с любого устройства
Неограниченное добавление в избранное
Позвоните автору
Вам ответят на все вопросы
Остались вопросы по объявлению?
Позвоните владельцу объявления и уточните необходимую информацию.
  • Инфраструктура
  • Похожие рядом
  • Общая площадь335 м²
Естественная вентиляция
Центральное кондиционирование
Центральное отопление
Помощь надёжных риелторов
Риелтор партнёр Циан поможет купить или продать любую недвижимость
РиелторГлеб Рукша
  • Документы проверены
  • 7 месяцев на Циане
  • 160 объявлений
  • 167 500 ₽/мес.

    Прямая аренда (от года), минимальный срок аренды 11 месяцев, доступны арендные каникулы, обеспечительный платёж 282500 ₽, предоплата за 1 месяц

    2 254 $/мес.
    1 892 /мес.
    Цена за метр
    6 000 ₽ в год
    Налог
    УСН
    Комиссия
    нет
    Коммунальные платежи
    не включены
    Эксплуатационные расходы
    не включены
    РиелторГлеб Рукша
    Документы проверены